05 October 2019
Image: Natimuk Off-Grid House | By Archiblox < < click me to see more
Off-grid with Energy to Share: In Pursuit of the Carbon Positive Home
Original Article by: Lisa Green for the Guardian Australia.
With climate change, better health and energy bills as drivers, thousands of Australians are investing in sustainable homes – and empowering technology
Western Victoria’s Wimmera country is a place of extremes. Thirty thousand hectares of flat wheat country comes to an abrupt halt at the looming cliffs of the Grampians; temperatures can swing from 46C in summer to -8C in winter. This dramatic landscape drew Karen and Glenn Tempest to a one-hectare block on the edge of the township of Natimuk five years ago, intent on building a home that would both fend off the cold and protect them from extreme heat … without costing a cent.
Glenn and Karen cut their teeth in sustainable housing with a green renovation in the inner Melbourne suburb of Carlton. “When we moved up here we had a mind to start with a fresh block and put on another sustainable green home,” Glenn says. “We liked the concept of a prefab modular design [now 3% of the new-build market] and the idea of factory construction because there’s less construction waste involved.”
Have a sustainable home in mind?


Sustainable House: Natimuk Off-Grid House | By Archiblox < < click me to see more
A volatile energy market, hefty utility bills and growing consumer desire to reduce personal carbon footprints have led to increasing numbers of Australians researching greener home designs and off-grid living, says Donna Luckman, CEO of Renew. This Victorian-based not-for-profit organisation has held an annual Sustainable House Day since 2001. The most recent took place on 15 September, with about 250 sustainable houses country-wide opening their doors to visitors, from suburban builds to remote weekenders. Solar panels, battery storage and chargers for electric cars are increasingly common, while construction materials range from rammed earth, straw bale and Hempcrete to prefab panels and corrugated iron. This year, for the first time, most of the open homes were off-grid.

Image: The Cape | Sustainable House Day
While carbon zero or carbon neutral homes are highly desirable sustainable design outcomes, the new holy grail is a carbon positive home. Bill McCorkell, director of ArchiBlox, the prefab modular house company that Glenn and Karen engaged to build their new home, says carbon positive “basically means creating more energy than the house requires so you can feed it back into the grid”.
Luckman says: “If you can get to a 7.5 or 8-star NatHERS energy rating that is ideal. The minimum standard for all homes across Australia is 6 stars so just increasing it by one and a half stars makes a big difference. And then tying that back to a PV [photovoltaic] solar system as well.” The third important move is to go all-electric.
Clean Energy Council (CEC) media manager Mark Bretherton says 2.1 million Australian households have installed solar PV systems.


Solar Panels: Clean Energy Council + Natimuk House | By Archiblox < < click me to see more
“There are a lot of government programs and a lot of enthusiasm … [access to government rebates] gives people solar very cheaply and demand is at record levels,” Bretherton says. “People see it as a way of taking their own action to reduce power bills. It’s also an opportunity for environmentally minded people to take their own action on climate change”.
A solar PV and battery system can unlock off-grid energy self-sufficiency and be a major step in the transition away from fossil fuels; it is important that consumers research what is the right battery for their needs, and crucially engage an accredited installer.
McCorkell directs his clients to discuss their energy needs with reliable local solar providers. “The biggest thing we emphasise is not to make a decision solely based on price,” he says. “There can be some big surprises with cheaper products. People need to look carefully at the type of inverter they need – which depends on location – then look at the cost, warranty and what paybacks and incentives they can access through local government schemes.”
McCorkell stresses the importance of expert support – whether for the secure fixing of panels or the correct installation of batteries. “Battery storage systems are a serious safety risk if incorrectly installed and may have implications for insurance coverage.”

Image: Natimuk House | By Archiblox < < click me to see more
Shane Clayton, from Gippsland Solar, has worked full-time as a solar specialist for the past 15 years. He says an accredited provider will bring focus to your energy decisions. “If you are considering installing a solar system you need someone who can help you with a proper analysis of usage, bills and needs,” Clayton says. “And to determine what your electricity supply is like. The available roof area and your budget are other important factors.”
Solar is a long-term investment and for that reason Clayton steers customers towards quality, high-performance products with stronger warranties. He stresses the need to engage a licensed installer to ensure safety standards are met. “Quality components and a good supplier history are essential,” he says.
Likewise, researching batteries and discussing your needs with an accredited battery designer will ensure you choose the right system for your needs and that it is correctly and safely set-up.


Sustainable Solar Powered Home: Natimuk House | By Archiblox < < click me to see more
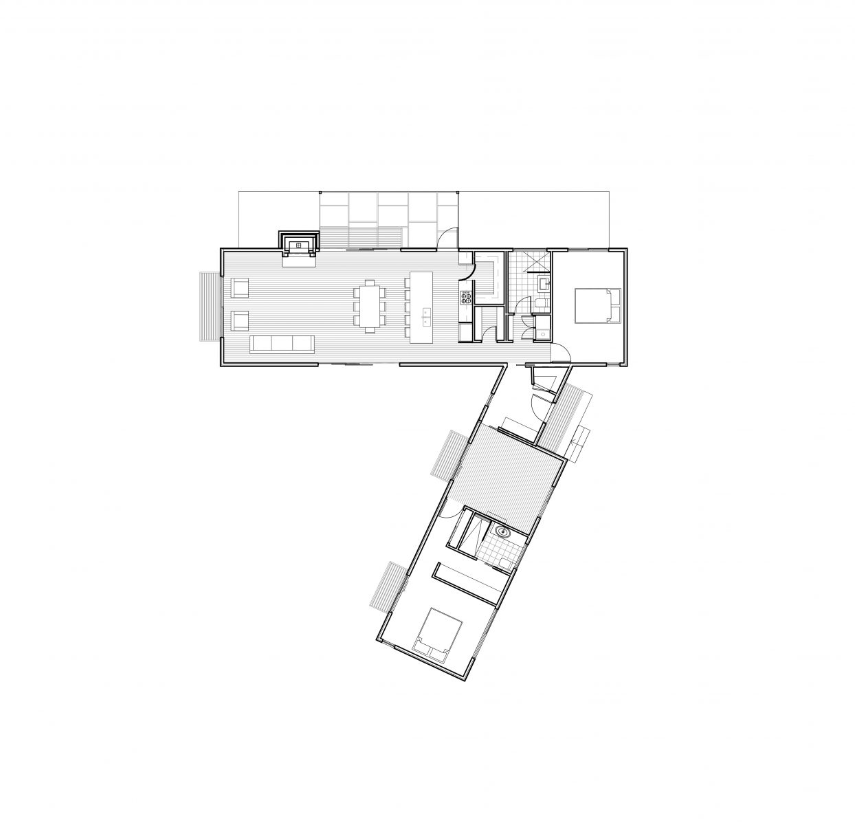
Glenn and Karen couldn’t be happier with their 146 sq m three-bedroom home on the Wimmera plains. Oriented to the north, with deep eaves, external blinds and surrounded by decks and grape-covered pergolas, it repels the summer sun and welcomes it in during winter. It is well insulated, and thermally broken windows prevent heat and cold transfer.
“Did they tell you they have enough surplus energy to supply their neighbours?” McCorkell says. “They can piggyback off Glenn and Karen’s system.”
Glenn says: “We’re not connected to the grid so we’re not paying for it and it would be wasted energy anyway. We put three split systems in the house. But we’ve got a 12.7kw solar system and a very large battery array. We never run out of energy. We’ve always got way more than we need.”


Images: Natimuk House | By Archiblox < < click me to see more
Glenn and Karen rely on harvested rainwater and have 100,000L of storage. As for the temperature extremes, Glenn says the split system has never been turned on to warm the house. When they head out on a summer day, they leave the cooling system on.
“On average the batteries will be full by 10am,” Glenn says. “It just draws directly from the sun pouring onto the panels.” Leaving plenty to share with the neighbours.
For more inspiring Sustainable Home Designs Click Here
We love sharing all the new and exciting things happening at Archiblox, so make sure you’re following us on Instagram, Facebook and Twitter, or signed up to our monthly newsletter, to ensure you don’t miss a thing.