10 April 2018
This Small, Off-Grid House Fits All You Need For A Very Comfortable Life.
Efficient living expert Graham Hill of LifeEdited fits space for eight people to sleep and 20 to dine in a 1,000-square-foot, solar-powered property.
Article by Eillie Anzilotti for Fast Company.
Photography by Shawn Hanna.

Graham Hill, founder of the minimalist design consultancy LifeEdited, has been on the living-small train for years. He founded the website Treehugger in 2005 as a platform for sustainable design and living ideas. “I wanted to make green mainstream,” he says. After he left that job, he turned its ethos into reality, and set up his own 420-square-foot, fully functional apartment in New York City in 2012 with the idea of modeling just how environmentally efficient and aesthetically pleasing working with limited space can be.
The original LifeEdited apartment featured all the standard amenities you might expect from a microunit–a bed that folds out over a sofa, a small fridge that functions like a drawer–as well as some surprising touches, like the ability to seat 12 people around a pull-out table. In New York City, where space is cramped and whole families often make do with studio-sized units, the LifeEdited model showed that good design can make small spaces both functional and comfortable.

Which is all good and necessary for city dwelling. But let’s think about the suburbs for a minute. Across America, the average home measures around 2,697 square feet. While New York depends on density to house its 8 million people in a small space, most places in the country still adhere to a philosophy of the more space, the better. “We supersize ourselves in every way,” Hill says. The emphasis on larger homes is out of touch with our real demographic needs. While the majority of the U.S. population (28%) is single people living alone, 40% of our housing stock is made up of three-bedroom apartments. “It’s just not a good match,” Hill says. And bigger homes require much more energy to heat and cool.
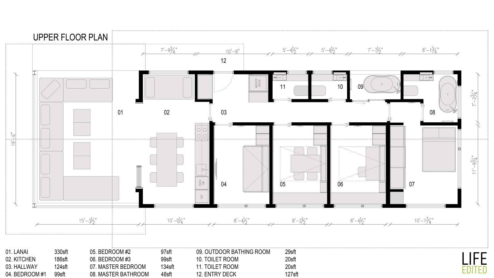
So for his latest iteration of a LifeEdited home, he brought the concept to a wide-open property in Maui (where he often spends winters) to prove that just because a home has the space to be huge, doesn’t mean it needs to be. LifeEdited Maui is a 1,000-square-foot home that’s designed to function like one twice its size. With a similar array of adjustable furniture and sliding walls that made his New York City apartments a success, the Maui home can comfortably sleep eight people in four bedrooms that convert to offices, and host a sit-down party for 20.



It’s also completely off-grid. Solar panels hooked up to battery storage provide 100% of the home’s energy. The roofs and gutters funnel rainwater into a 15,000-gallon tank for reuse, and the toilets for its 2.5 baths, created by the Swedish company Separett, compost waste instead of flushing it.
Though the LifeEdited Maui house is certainly a good model for the future of home development, it’s still not exactly affordable: Hill and his team completed the project in December for around $1 million.


As sustainable amenities like solar panels and composting toilets become more mainstream and affordable, that price tag will hopefully decrease. “Trying to move toward 24-hour architecture should be the goal,” he says. And if his model for luxury living can shift the aspirational vision away from large and wasteful and toward compact and sustainable, we’ll all be better off.
“An edited, conscious life is a happy one,” Hill says.



To view original article by Fast Company, click here.
If you’re interested in pursuing your own off-grid project, we’d love to help! Click here to get in touch.